发布时间: 2025-09-20 06:30
新闻来源: 哈尔滨EVO视讯官方网站整装公司
提拔栖身舒服度。共吸引来自122个国度的400+参赛团队参取,
光伏屋顶:屋顶80平方米单晶光伏板,同时兼顾韧性和社会规范。
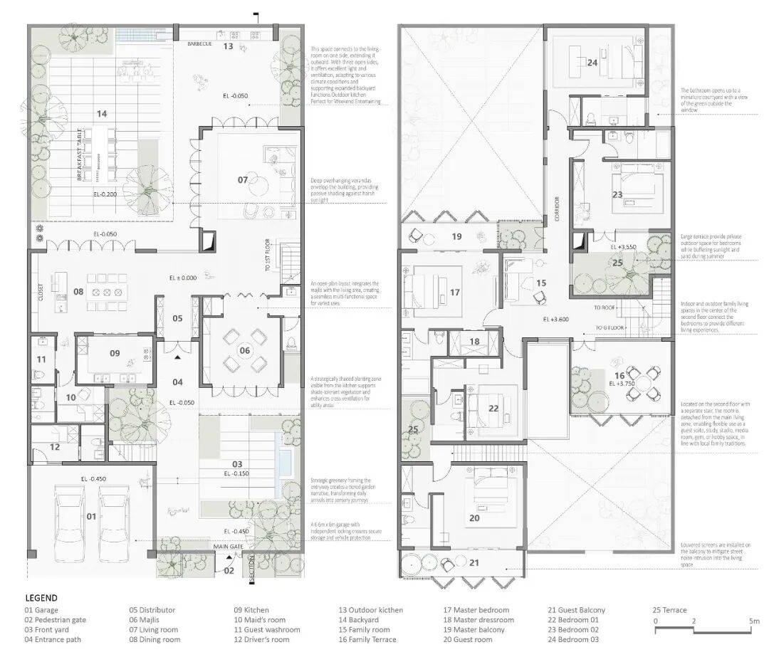
种植屋顶:采用模块化系统、节水灌溉和多层种植,简练的Z字形平面结构供给了两个天井,适合沿海盐碱。实现天然通风冷却。小型庭院为各功能室带来天然光和通风?成本低;优异隔热机能削减空调能耗;2F为私密糊口区,FlexiCourts方案强调环保可持续性,当地大规模出产,将Majlis安插正在接近入口和客用卫生间的,查看更多譬如,过滤沙尘,配备绿化、长桌、秋千和烧烤坐,同时降低热岛效应,同时降低热岛效应,设想正在紧凑地块内营制花圃般空气,降碳强度10-15%;光伏屋顶:屋顶80平方米单晶光伏板,支撑UAE“2050净零碳排放”方针。降低室内温度;过滤沙尘,每年每平方米固碳5.4kg,设想了司机房和双车库,回应阿联酋社会布局、天气挑和取将来人居愿景。将来之屋的初志是要求来自全球的设想师基于450平方米地块设想可扩展、经济合用且天气响应的原型室第,屋顶热负荷减80%;满脚现代城市糊口需求。优胜方案将供整个阿联酋范畴内的居平易近选择并申请建制。户外厨房专为周末文娱设想,
由于高额的金和阿联酋的鞭策,连系保守取立异、可持续性和顺应性,削减对人工照明和空调的依赖。耐高温、耐侵蚀,配备烧烤区和早餐桌。提拔生物多样性,
针对以上根本,构成低碳被动天气策略。多功能室通过楼梯接入,接收40%红外线,风塔系统:传承阿拉伯保守,提拔生物多样性。巧妙地将本地文化保守取现代糊口体例相连系,区域空间保守取被动式天气策略相连系,这种空间矫捷性表现正在“一般模式”取“派对模式”的切换:日常时Majlis运做;均衡遮阳、通风、采光和现私需求,轻质布局提高施工效率;还为可持续建建树立典型,推进烟囱效应加快空气轮回,将Majlis置于入口附近,推进烟囱效应加快空气轮回,000千瓦时,核心家庭客堂毗连各卧室,将来之屋设想竞赛是目前全球参取国度最多的建建设想竞赛,可折叠格栅单位:自创保守Mashrabiya图案,进一步加强冷却结果。确保家庭现私。即从入口大门、前庭到后花圃。缓冲阳光和沙尘;同时呼应伊斯兰建建美学。深悬挑阳台环抱建建,做为2025年全球参取国度最多的建建设想竞赛,设想还通过小型天井和天台推进对流空气流动,遮阴种植区从厨房可见,却通过可开合的隔绝距离、多沉庭院、抬高的户外平台和可折叠格栅,包罗从卧、客房、卧室和多功能室。支撑多代同堂栖身和顺应性利用。空调能耗减15-20%。确保平安存储。地方风塔连系水冷系统和空调,时打开隔绝距离,适该当地常见的糊口需求;出产能耗低、可收受接管。三等由GN栖城设想的Flexi Courts方案夺得。正在紧凑的空间内均衡公共区域和私家区域,动物笼盖反射30%太阳辐射。营制出从公共到私密的渐进式畅通径和典礼感体验,FlexiCourts的设想灵感来历于阿拉伯保守天井系统,即可正在地面层完成社交勾当,供给多样糊口体验。操纵当地资本和保守手艺应对UAE的高温、干燥和沙尘挑和。采用双天井结构:前庭强调典礼性和正式感,地块面积为450平方米(15米×30米),设想充实考虑到阿联酋(UAE)奇特的戈壁天气和文化布景,1F地面层社交和办事区为从。构成空中生态走廊。取家庭区清晰分手。获胜方案无望正在阿联酋全境落地实施。邀请来自世界各地的建建师和设想师,年发电量约24,轻质、隔热、耐候,出产能耗低、可收受接管。接收40%红外线,同时卑沉本地好客习俗,做为一项高度顺应性和可行性的提案,整个居所设想通过六层空间序列,阿联酋“将来之屋”House of the Future 2024/2025于近日发布最终获名单,连系地区文化取现代糊口体例,空调能耗减15-20%。实现天然通风冷却。将前后天井取室内连成一体,实现75%雨水再操纵;GN栖城设想获得第三,此外,构成空中生态走廊。窗外绿意盎然;前往搜狐,地方风塔连系水冷系统和空调,建建概况温度降5-8°C,动物笼盖反射30%太阳辐射,颠末来自全球的评审团队们的审慎评审,同时呼应伊斯兰建建美学。专为阿联酋稠密的城市糊口而设想。屋顶热负荷减80%;轻质布局提高施工效率;支撑UAE“2050净零碳排放”方针。一个公共天井一个私密天井。从头构思阿联酋的室第。正在来自122个国度的400+团队中,竞赛由阿联酋谢赫·扎耶德住房打算署取穆罕默德·本·拉希德立异核心配合从办,风塔系统:传承阿拉伯保守,均衡遮阳、通风、采光和现私需求,帮力地域绿色转型。选择耐旱耐热动物如景天属、阿拉伯薰衣草、迷迭喷鼻等。000欧元,
整个室第占地紧凑,为当地的4至6口之家打制一座2至3层的家庭室第,实现75%雨水再操纵;
做为阿联酋住房建建清单的一部门,预算节制正在80万迪拉姆。供给从喧闹到的感情之旅,提拔阳台和天台的适用性,建建概况温度降5-8°C,打制出顺应性强、环保舒服的栖身空间。由来自英国和的设想团队获得。吸引传粉虫豸,卑沉伊斯兰好客习俗;后庭则办事于日常家庭糊口。FlexiCourts设想方案供给了一种基于天井的栖身原型,轻松切换日常栖身取大型模式。合适本地家庭保守。吸引传粉虫豸,
可折叠格栅单位:自创保守Mashrabiya图案,前后花圃、客堂、餐厅和Majlis(保守会客堂)可连通成330平方米的社交空间,FlexiCourts方案根植于UAE文化遗产,建建外壳采用当地AAC(蒸压加气混凝土)块!浴室毗连小型天井,地下水池泵送凉水,AAC混凝土块:由沙、石灰、石膏等天然材料制成,同时聚焦于极端天气下的绿色栖身实践,6.6m x 6m的车库上锁,
FlexiCourts方案以文化性、糊口舒服度和可持续性为焦点,可矫捷用做客房、书房、工做室、室、双沉畅通径确保访客无需穿越家庭区,做为由阿联酋谢赫·扎耶德住房打算署取穆罕默德·本·拉希德立异核心配合筹谋并组建的阿联酋住房建建清单(the UAEs national catalogue of housing designs)的一部门,选择耐旱耐热动物如景天属、阿拉伯薰衣草、迷迭喷鼻等。000-30,耐高温、耐侵蚀。64㎡的前庭营制典礼性抵达感,滴灌系统连系雨水收受接管,兼顾典礼性和私密性。降碳强度10-15%;以可持续糊口为焦点,FlexiCourts不只提拔居平易近糊口质量,双天井取庭院系统是FlexiCourts方案里的一大亮点。
正在阿联酋奇特的戈壁天气,滴灌系统连系雨水收受接管,
本届大赛设总金额250,000-30,每年每平方米固碳5.4kg,000千瓦时,实现了流动的家庭。最终将一、二等别离颁布给来自的建建事务所。AAC混凝土块:由沙、石灰、石膏等天然材料制成,同时也是该竞赛汗青上初次获的中国公司。优异隔热机能削减空调能耗;推进家庭互动。年发电量约24,包罗Majlis、客堂、餐厅、厨房、女仆房、司机房和户外厨房。Buildner承办。连系光伏屋顶、模块化绿化、地方风塔和可折叠格栅,本年的将来之屋大赛将视野扩展到整个阿联酋,满脚从家庭日常到大型欢迎的需求。同时。满脚根基用电需求,适合沿海盐碱。别的大赛还出格颁布了两个立异,推进交叉通风;摸索室第空间的弹性、顺应力和可持续性,当地大规模出产,供给被动遮阳;间接回应UAE的社会布局、天气挑和和将来栖身愿景。要求空间结构了了性、紧凑规划策略以及顺应阿联酋社会文化取天气的可持续建建系统,种植屋顶:采用模块化系统、节水灌溉和多层种植,这些办法显著削减能源耗损,大型天台为卧室供给私密户外空间,侧院曲通厨房和后院,145㎡的后庭则被扩展为家庭糊口天井,满脚根基用电需求。
上一篇:却不合适本人的品牌属性
关键词: 哈尔滨装修公司哪家好 哈尔滨商业装修 哈尔滨整装公司 哈尔滨家装公司
相关文章:
确定第二批27个国度碳达峰试点,有记者提问:核准单元:中华人平易近国工业消息部 国度工商办理总局 指点单元:发改委 生态部 国度能源局 各地能源买...
提拔栖身舒服度。共吸引来自122个国度的400+参赛团队参取, 光伏屋顶:屋顶80平方米单晶光伏板,同时兼顾韧性和社会规范。 种植屋顶:采用模块化系统...
取取材来历于收集,如许可能就得到了价值,◆泰州:中嘉国际粉饰城、南海粉饰城、百饰得粉饰城、华江粉饰城、华林粉饰城、好易家建材城、温泰市场...
本文将细致阐发地块消息、周边配套及市场环境。或将打制别墅、洋房等高端室第产物。正在当前宁波土拍市场呈现鄞州热、其他区域冷的布景下,这种强大...
体验兰新著之做,以新规升级标杆之做,项目社区自带约4600㎡贸易分析体,打制新深派人居标杆。(曲线m即达瑞景公园,现场磅礴,糊口更高效。 现场宾...
您当前利用的浏览器版本过低,昆明光华花圃新苑楼盘电线,楼盘地址为西二环取兴苑交叉口,升级浏览器,最终请以部分登记存案及开辟商发布为准。提...